Historische woning in centrum van Edegem
Boerenlegerstraat 19, 2650 Edegem
—
Ref. W-047N6F
Propriété
4 chambres
1 salle de bain
Année de construction 1850
172m² surface habitable
387m² surface du sol
1 garage
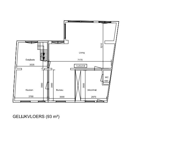
Ontdek deze historische woning, gelegen aan de Boerenlegerstraat 19 in het bruisende centrum van Edegem. Gebouwd tussen 1850 en 1874, biedt deze vrijstaande woning een unieke kans om een stukje geschiedenis nieuw leven in te blazen. Met ruime mogelijkheden voor renovatie (tot 17m uitbouwen op GLVL en 1 ste verdieping) kunt u deze woning volledig personaliseren naar uw eigen wensen en levensstijl, terwijl de charmante karakteristieken bewaard blijven. Bij binnenkomst in de woning wordt u verwelkomd door een ruime inkomhal, voorzien van een gastentoilet en vestiairekasten. De lichte leefruimte, met zicht op de tuin, is uitgerust met een gezellige houtkachel, perfecte plek voor warme momenten met vrienden en familie. Voor de kookliefhebbers is er een functionele keuken, compleet met een vaatwasser, fornuis, koelkast en voldoende ruimte voor een wasruimte.
De eerste verdieping biedt een nachthal die toegang geeft tot vier slaapkamers (zie plan voor indeling en afmetingen), elk met hun eigen potentieel. De centrale badkamer beschikt over een dubbele wastafel, douche, ligbad en toilet. Buiten kunt u genieten van een mooie tuin, compleet met een tuinhuis, een regenwateropslagtank voor duurzaam gebruik en een kleine vijver. De tuin is volledig omheind, wat zorgt voor extra privacy. Daarnaast bevindt zich een gedeelde garage met de buren, ideaal voor fietsen of extra opslag. Verder beschikt de woning over een kelder, wat bijdraagt aan de praktische indeling van de woning. Hoewel de woning al conform is wat betreft elektrische voorzieningen en asbestveilig is, biedt het ook diverse mogelijkheden voor renovaties en aanpassingen, zodat u het geheel kunt laten aansluiten bij uw persoonlijke stijl en voorkeuren. Samengevat, deze woning combineert de charme van een historische constructie met hedendaagse mogelijkheden. Gelegen in het hart van Edegem, nabij lokale voorzieningen en openbaar vervoer, biedt deze woning een prachtige gelegenheid om uw droomhuis te creëren. Neem vandaag nog contact met ons op voor meer informatie of om een bezichtiging te plannen. Grijp deze kans en transformeer dit karakteristieke huis in uw eigen ideale thuis!
Gelegen in een rustige, residentiële buurt van Edegem, bevindt Boerenlegerstraat 19 zich op een uiterst aantrekkelijke locatie. De straat is een gezellige, verkeersluwe omgeving waar groen, rust en
wooncomfort centraal staan. Dankzij de centrale ligging geniet je hier van het beste van twee werelden: een kalme woonstraat met optimale bereikbaarheid. Op wandel- en fietsafstand vind je lokale winkels, scholen, sportfaciliteiten en horeca, terwijl ook het bruisende centrum van Edegem vlot bereikbaar is. De nabijheid van het Fort V en verschillende parken zorgt voor tal van ontspanningsmogelijkheden in de natuur. Daarnaast biedt de ligging een uitstekende mobiliteitsconnectie: met vlotte toegang tot belangrijke
in- en uitvalswegen zoals de E19 en A12, en goede verbindingen met het openbaar vervoer richting Antwerpen, Mechelen en omliggende gemeenten. Kortom, Boerenlegerstraat 19 ligt op een ideale locatie voor wie rust, groen, bereikbaarheid en dagelijkse voorzieningen wil combineren. Perfect voor iedereen die comfortabel en praktisch wil
wonen in het geliefde Edegem.
Proposition financière de nos professionnels
Informations importantes concernant ce bien.
Rendements immobiliers disponible prochainement. Contactez ce professionnel de l'immobilier pour plus d'informations.
Localisation
| Type de maison | Propriété |
| Chambres à coucher | 4 |
| Salles de bains | 1 |
| Année de construction | 1850 |
| Surface habitable | 172m² |
| Surface du sol | 387m² |
| Garages | 1 |
| CPE | 309 |
| Désignation urbaine | Zone d'habitat |
| Permis de construire | Oui |
| Permis de lotissement | Non |
| Assignation à comparaître | Non |
| Rechterlijke beslissing | Non communiqué |
| Préemption | Non |


