KORTEMARK: Penthouse 3.01 met 2 comfortabele slaapkamers, 2 ensuite-badkamers en 111,60m² uitgestrekt zitterras gelegen op de derde verdieping van Nieuwbouwresidentie Mila en Nora
Hoogledestraat 35, 8610 Kortemark
—
Ref. 4200069
Appartement
2 chambres
2 Salles de bains
152m² surface habitable
272m² surface du sol
NOVEMBER - INVESTERINGSMAAND - Uw persoonlijk bezoek op reservatie
Deze kleinschalige nieuwbouwresidentie is centraal gelegen nabij het station en op wandelafstand van de Markt in Kortemark. Met de E403 op 8,5 km geniet het project een uitstekende bereikbaarheid. In de onmiddellijke buurt vindt u er onder andere scholen, sporthal, natuur- en recreatiedomein Krekemeersen, warenhuizen, bakkerij, slagerij, apotheek, bank ...
“Residentie Mila en Nora” bestaat uit 2 inkomhallen en 4 verdiepingen. De gelijkvloerse verdieping bevat 6 dubbele garageboxen, 5 enkele garageboxen en 5 autostaanplaatsen. In de eerste en tweede verdieping vinden we per verdieping 5 villa-appartementen. De dakverdieping bestaat uit 1 luxe-penthouse.
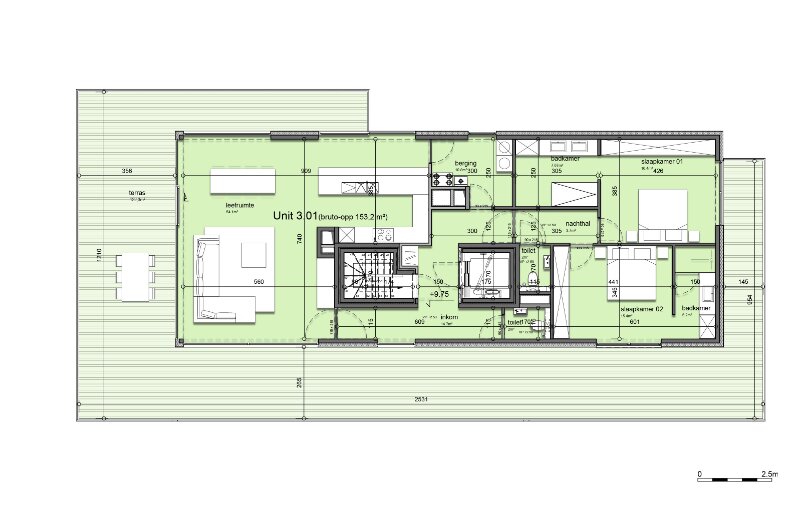
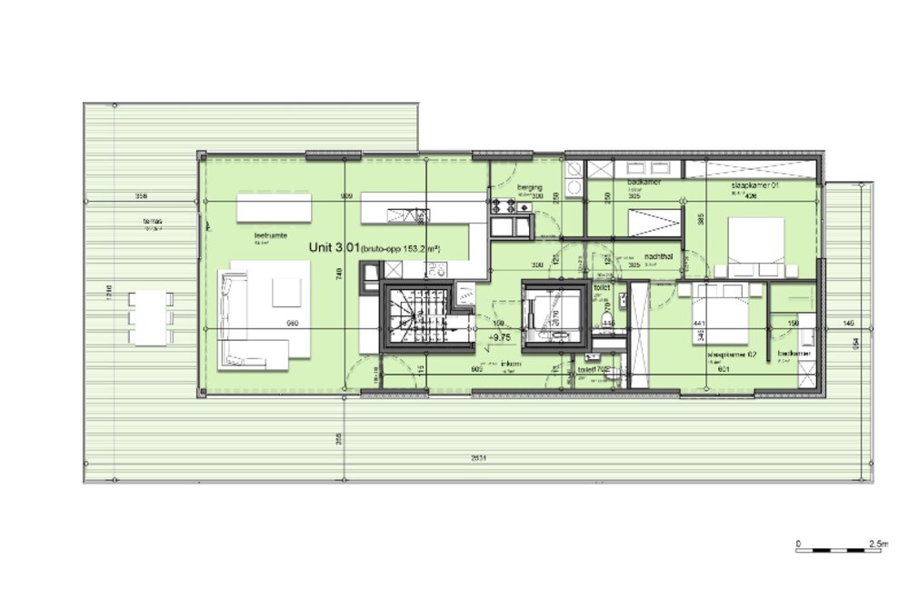
Deze penthouse wordt afgewerkt met de nodige precisie. De grote raampartijen, de royale bewoonbare oppervlakte van 153,2m² en het uitgestrekt zitterras van maar liefst 111.6m² zorgen voor een zalig luchtig gevoel. De open keuken en de ensuite-badkamers worden uitgerust met alle hedendaags comfort.
Penthouse 3.01 is gelegen op de derde verdieping en is als volgt ingedeeld:
- Inkomhal met gastentoilet en onmiddellijke toegang tot traphal en lift
- Ruime leefruimte voorzien van grote raampartijen
- Kwalitatieve open keuken voorzien van alle hedendaags comfort
- Technische berging (10,8m²)
- Nachthal met individueel toilet en toegang tot 2 uiterst comfortabele slaapkamers
- Elke slaapkamer heeft een eigen ensuite-badkamer
Mogelijkheid tot aankopen van een enkele/dubbele garagebox en/of een autostandplaats in het gebouw.
TECHNISCH :
- Centrale verwarming op aardgas met condenserende wandketel
- Hoog-rendementsbeglazing met isolerende PVC-beraming
- Thermische isolatie conform EPB-regelgeving
- Ventilatiesysteem conform EPB-regelgeving
- Brandwerende en inbraakveilige Inkomdeur
- Conforme elektriciteit
Bel Nik (T. 0472 38 97 46) vrijblijvend op voor meer informatie. Wij begeleiden u graag met de glimlach op zoek naar uw droomwoning & commercieel pand.
Deze kleinschalige nieuwbouwresidentie is centraal gelegen nabij het station en op wandelafstand van de Markt in Kortemark. Met de E403 op 8,5 km geniet het project een uitstekende bereikbaarheid. In de onmiddellijke buurt vindt u er onder andere scholen, sporthal, natuur- en recreatiedomein Krekemeersen, warenhuizen, bakkerij, slagerij, apotheek, bank ...
“Residentie Mila en Nora” bestaat uit 2 inkomhallen en 4 verdiepingen. De gelijkvloerse verdieping bevat 6 dubbele garageboxen, 5 enkele garageboxen en 5 autostaanplaatsen. In de eerste en tweede verdieping vinden we per verdieping 5 villa-appartementen. De dakverdieping bestaat uit 1 luxe-penthouse.
Deze penthouse wordt afgewerkt met de nodige precisie. De grote raampartijen, de royale bewoonbare oppervlakte van 153,2m² en het uitgestrekt zitterras van maar liefst 111.6m² zorgen voor een zalig luchtig gevoel. De open keuken en de ensuite-badkamers worden uitgerust met alle hedendaags comfort.
Penthouse 3.01 is gelegen op de derde verdieping en is als volgt ingedeeld:
- Inkomhal met gastentoilet en onmiddellijke toegang tot traphal en lift
- Ruime leefruimte voorzien van grote raampartijen
- Kwalitatieve open keuken voorzien van alle hedendaags comfort
- Technische berging (10,8m²)
- Nachthal met individueel toilet en toegang tot 2 uiterst comfortabele slaapkamers
- Elke slaapkamer heeft een eigen ensuite-badkamer
Mogelijkheid tot aankopen van een enkele/dubbele garagebox en/of een autostandplaats in het gebouw.
TECHNISCH :
- Centrale verwarming op aardgas met condenserende wandketel
- Hoog-rendementsbeglazing met isolerende PVC-beraming
- Thermische isolatie conform EPB-regelgeving
- Ventilatiesysteem conform EPB-regelgeving
- Brandwerende en inbraakveilige Inkomdeur
- Conforme elektriciteit
Bel Nik (T. 0472 38 97 46) vrijblijvend op voor meer informatie. Wij begeleiden u graag met de glimlach op zoek naar uw droomwoning & commercieel pand.
Proposition financière de nos professionnels
Informations importantes concernant ce bien.
Rendements immobiliers disponible prochainement. Contactez ce professionnel de l'immobilier pour plus d'informations.
Localisation
| Type de maison | Appartement |
| Chambres à coucher | 2 |
| Salles de bains | 2 |
| Surface habitable | 152m² |
| Surface du sol | 272m² |
| Désignation urbaine | Autre |
| Permis de construire | Non communiqué |
| Permis de lotissement | Non communiqué |
| Assignation à comparaître | Non communiqué |
| Rechterlijke beslissing | Non communiqué |
| Préemption | Non communiqué |


