Combineer zee & stad tot 1 fenomenaal appartement!
Zeedijk 129, 8370 Blankenberge
—
Ref. 7589911
Appartement
3 chambres
2 Salles de bains
Année de construction 1996
189m² surface habitable
189m² surface du sol
Label énergétique D
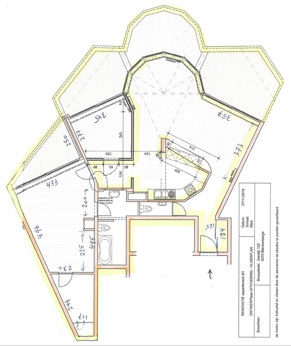
Dubbele wow aan zee: twee naast elkaar liggende appartementen – ideaal om te combineren tot één fenomenaal familie- of droomappartement!
Op de 8e verdieping van Residentie Bristol Palace bieden we twee aansluitende units aan:
App 1: Hoekappartement met ruime terrassen over de hele breedte met magnifiek frontaal zeezicht. 2 slaapkamers, 1 badkamer, open living/keuken met maximale lichtinval.
App 2: Zonneterras-appartement met groot zuidgericht terras met vrij uitzicht over de stad en hinterland. 1 slaapkamer (mogelijkheid uit te breiden), 1 badkamer.
Samenvoegen mogelijk – mits akkoord VME en omgevingsvergunning – tot één groot appartement van ±200 m² met fenomenale terrassen aan beide kanten:
Zeezicht-terras: barbecue met golven op de achtergrond
Zonneterras: zon en stadspanorama tot laat
Resultaat: 3 slaapkamers, 2 badkamers, ruime leefruimte, dubbel uitzicht (zee + stad) – ideaal voor families, als investering of luxe tweede verblijf.
Centraal op de Zeedijk: strand, casino, jachthaven, centrum en station op wandelafstand. Optie op parking en kelder. EPC C/D – modern comfort.
Unieke combinatie met zee- én stadzicht! Geïnteresseerd? Contacteer me voor virtuele tour of bezichtiging.
Mogelijkheid tot aankoop kelderbergingen en bijkomende staanplaats voor 1 en/of 2 auto's in het gebouw!
Interesse? Contacteer Tinne via 0472 944 955 of tinne@keyimmo.be voor meer info of een bezoek.
Proposition financière de nos professionnels
| Loyer par mois | € 1500 |
| Contribution propre (20% arrondi du total) | € 174.000 |
Localisation
| Type de maison | Appartement |
| Chambres à coucher | 3 |
| Salles de bains | 2 |
| Année de construction | 1996 |
| Surface habitable | 189m² |
| Surface du sol | 189m² |
| Label énergétique | D |
| CPE | 318 |
| Référence du CPE | 20221030-0002712365-RES-1 |
| Zone d'inondation | Non communiqué |
| P-score | B |
| G-score | B |
| Désignation urbaine | Zone d'habitat |
| Permis de construire | Oui |
| Permis de lotissement | Non communiqué |
| Assignation à comparaître | Non |
| Rechterlijke beslissing | Non communiqué |
| Préemption | Non |


