Sint-Michielsstraat 13 bus 208 - Gent
Sint-Michielsstraat 13 208, 9000 Gent
—
Ref. 7225277
Appartement
1 chambre
1 salle de bain
Année de construction 2016
54m² surface habitable
2320m² surface du sol
TROEVEN
- Centrale ligging in Gent
- Mix van rust en stedelijke gemakken
- Momenteel verhuurd, ideaal als investering
- Perfect als comfortabele woonplek voor later
- Uitstekende faciliteiten en zorgondersteuning
LIGGING
Dit appartement bevindt zich op een toplocatie in Gent en is omringd door winkels, restaurants en is eenvoudig bereikbaar met het openbaar vervoer of de wagen.
Alles wat u nodig heeft is op wandelafstand bereikbaar, alsook de culturele en historische highlights van Gent.
UNIEKE FACILITEITEN
Als bewoner van Collegehof geniet u van diverse gemeenschappelijke voorzieningen:
- Een sfeervolle gemeenschappelijke ruimte
- Een binnentuin om te ontspannen
- Een stille ruimte
Deze faciliteiten maken van Collegehof een warme en comfortabele thuis waar zorg en ondersteuning hand in hand gaan.
BESCHRIJVING
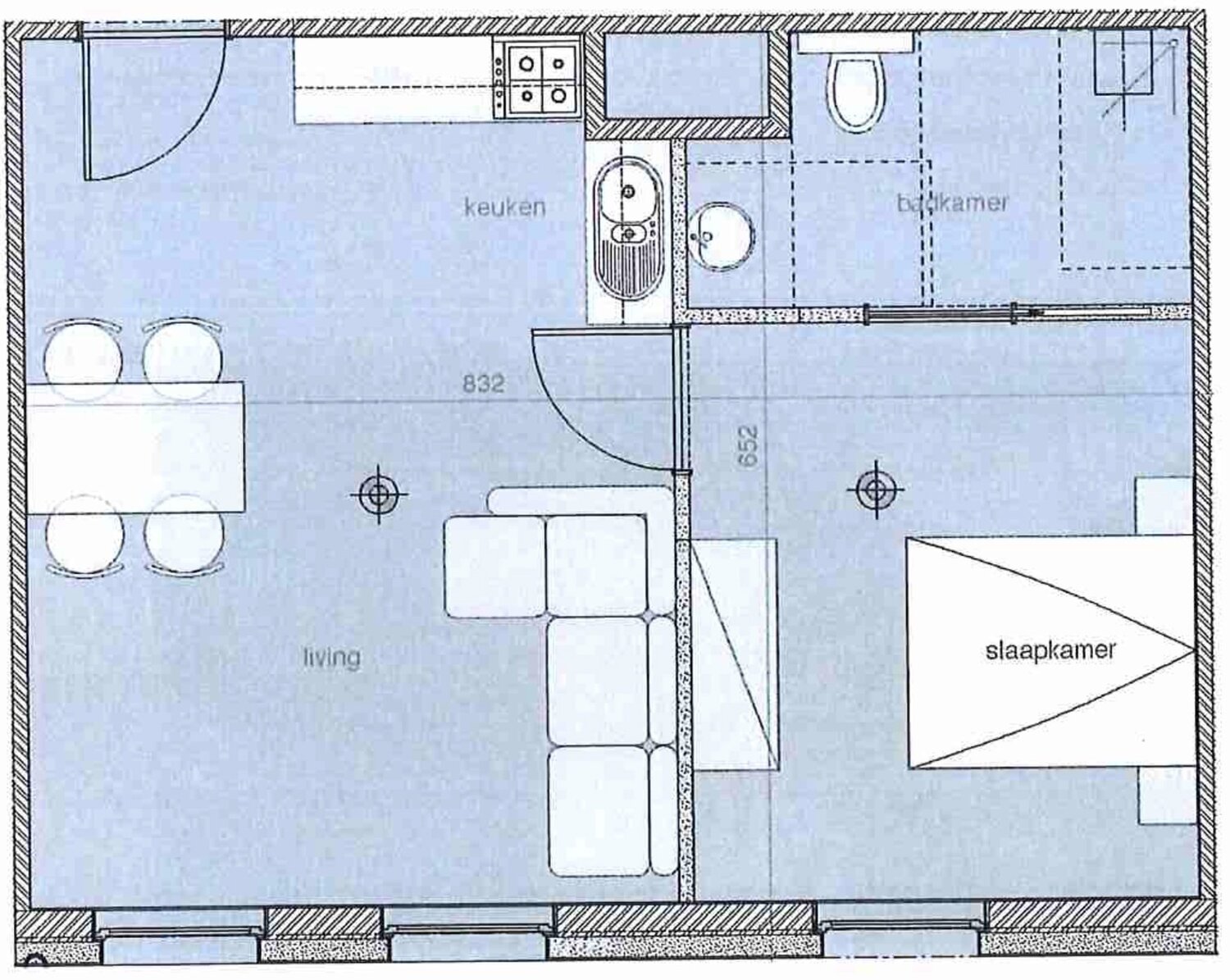
Dit service appartement bevindt zich op de 2de verdieping.
Het omvat een open keuken die naadloos verbonden is met de leefruimte, wat zorgt voor een ruimtelijk en lichtrijk gevoel.
Daarnaast is er 1 slaapkamer met ensuite badkamer aanwezig. De badkamer is uitgerust met een inloopdouche, toilet en lavabo.
Momenteel is het appartement verhuurd, wat zorgt voor een zorgeloze investering met stabiele inkomsten.
Met de stijgende vraag naar assistentieappartementen biedt deze eigendom zekerheid en toekomstpotentieel.
Voor meer info en/of een bezoek, contacteer Kevin: 0476 66 55 50.
(maten en oppervlakten zijn geraamd)
Proposition financière de nos professionnels
| Loyer par mois | € 650 |
| Contribution propre (20% arrondi du total) | € 57.000 |
Localisation
| Type de maison | Appartement |
| Chambres à coucher | 1 |
| Salles de bains | 1 |
| Année de construction | 2016 |
| Surface habitable | 54m² |
| Surface du sol | 2320m² |
| CPE | 93 |
| Référence du CPE | 44021-G-2014_217288/EP16735/A001/D01/SD023 |
| Zone d'inondation | Non communiqué |
| Désignation urbaine | Autre |
| Permis de construire | Oui |
| Permis de lotissement | Non |
| Assignation à comparaître | Non |
| Rechterlijke beslissing | Non communiqué |
| Préemption | Non |


